Rif: V791
BORDIGHERA
IMPERIA
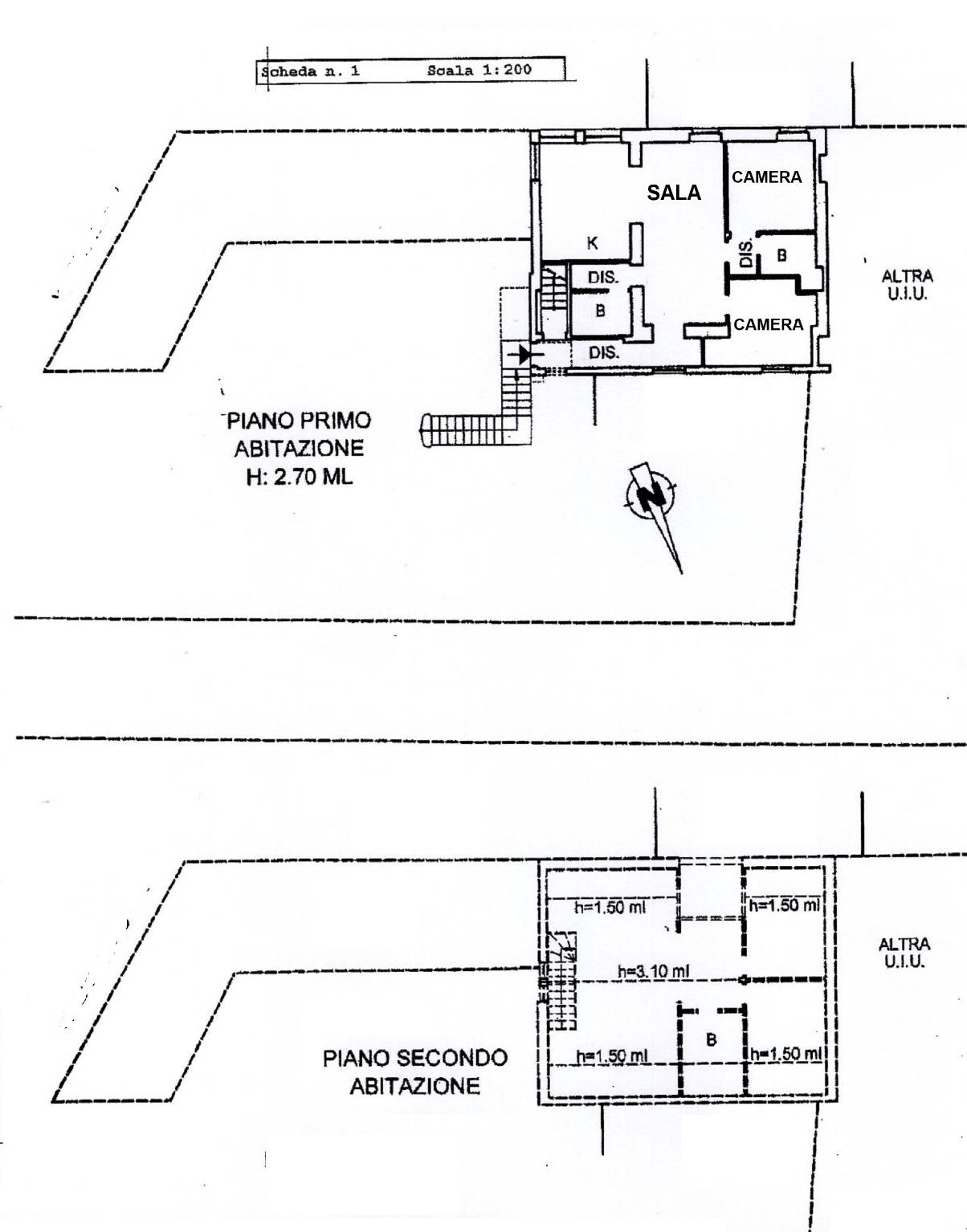
Rif. V791 BORDIGHERA, FRONTE MARE, esattamente a 50mt. , luminosissima Porzione di Casa Indipendente DUPLEX, ad oggi composta da due unità abitative distinte, al piano primo ed ultimo (1° e 2° ULTIMO ) di circa 180 mq. catastali totali con piccola corte esterna: al piano primo raggiungibile da scalinata esterna di circa una ventina di gradini ampio TRILOCALE di circa 103 mq. catastali così composto: ingresso nel disimpegno, ampio soggiorno, cucina abitabile 2 camere matrimoniali e 2 bagni di cui uno con vasca e l'altro con doccia. Riscaldamento autonomo con caldaia a gas metano. Completamente accessoriato ed arredato. Doppia Esposizione est-sud. Magnifica vista mare.
Possibilità di frazionarlo in due alloggi ( un monolocale ed un bilocale ) al fine di metterlo a reddito per affitti di qualsivoglia tipologia.
Al piano secondo ed ultimo, raggiungibile con scala interna di circa una decina di scalini, TRILOCALE Mansardato indipendente, di circa 73 mq. catastali di cui circa 71 mq. di abitazione e circa 6 mq. di terrazza composto da ingresso nel soggiorno con cucina a vista 2 camere ( una matrimoniale e l'altra più contenuta ) un bagno finestrato con doccia (con alloggiamento lavatrice). Terrazzino quadrato prendi sole con magnifica vista mare. No spese condominiali. Riscaldamento a pellet autonomo. Acqua calda e cucina con boiler a gas. Doppia esposizione sud-nord. Aria condizionata. Completamente accessoriato ( cucina completa forno elettrico, lavastoviglie.
Ideale per una famiglia numerosa e per ogni esigenza abitativa transitoria o residenziale ovvero da investimento!
Possibilità di frazionarlo in due alloggi ( un monolocale ed un bilocale ) al fine di metterlo a reddito per affitti di qualsivoglia tipologia.
Al piano secondo ed ultimo, raggiungibile con scala interna di circa una decina di scalini, TRILOCALE Mansardato indipendente, di circa 73 mq. catastali di cui circa 71 mq. di abitazione e circa 6 mq. di terrazza composto da ingresso nel soggiorno con cucina a vista 2 camere ( una matrimoniale e l'altra più contenuta ) un bagno finestrato con doccia (con alloggiamento lavatrice). Terrazzino quadrato prendi sole con magnifica vista mare. No spese condominiali. Riscaldamento a pellet autonomo. Acqua calda e cucina con boiler a gas. Doppia esposizione sud-nord. Aria condizionata. Completamente accessoriato ( cucina completa forno elettrico, lavastoviglie.
Ideale per una famiglia numerosa e per ogni esigenza abitativa transitoria o residenziale ovvero da investimento!
Consistenze
| Descrizione | Superficie | Sup. comm. |
|---|---|---|
| Principali | ||
| Immobile - 1° piano | 103 Mq | 103 Mqc |
| Immobile - 2° piano | 71 Mq | 71 Mqc |
| Accessorie | ||
| Terrazza - 2° piano | 6 Mq | 2 Mqc |
| Totale | 176 Mqc | |







